Samonosné systémy NEVA STL

Samonosný systém NEVA STL slúži k rýchlej montáži vonkajších žalúzií do pripraveného priestoru v stavbe.

Žalúzia tvorí s nosnými držiakmi a vodiacimi profilmi jeden celok, ktorý môžete po vybalení hneď pripevniť.

Samonosný systém STL je určený pre žalúzie s vodiacimi kolíkmi. Namontujete ho do ostenia alebo do rámu okna. Pri tomto samonosnom systéme nie je možné spájať viac žalúzií na 1 motor.

V prípade potreby vám radi vyrobíme aj zosilnený systém STL až do šírky 4 metrov.

 

hashtag nevapartner - modré na bielom

Naši obchodno-montážni partneri vám radi poradia najvhodnejše riešenie pre váš projekt. Cenovú ponuku vám ochotne vypracujú na mieru, zadarmo a úplne nezáväzne.

Výhody samonosného systému STL

piktogram - čas, termíny

Rýchla montáž

Samonosný systém vám ušetrí čas i náklady na montáž. Tvorí s žalúziami jeden celok, ktorý montéri na stavbe nemusia skladať, ale rovno ho upevnia.

piktogram - vytiahnuté žalúzie, nízky nábal

Variabilita

Systém namontujete do pevného ostenia alebo na rám okna. Vďaka dvojitému vodiacemu profilu môžete žalúzie dokonca spájať.

piktogram - ozubené koliesko

Zosilnený STL systém

NA prianie vyrobíme systém STL aj vo variante so zosilneným horným profilom a vystuženými nosnými držiakmi. Vďaka tomu žalúzie zatienia väčšinu plochy.

Technické parametre STL

STL štandardný variant

STL - samonosný žalúziový systém NEVA

 

Samonosný systém
STL
Kľuka Motor
Šírka žalúzie (mm) 460 – 2300 600 – 2300
Výška žalúzie (mm) 500 – 3500 500 – 3500
Maximálna plocha
žalúzie (m2)
8 8

 

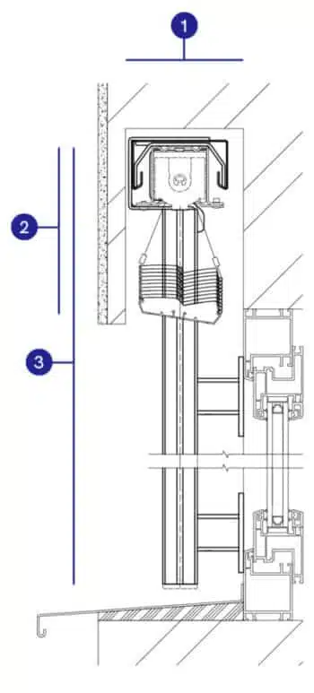
Legenda k nákresu
1 Vnútorný priestor
pre žalúzie (mm)
130
(doporučené)
2 Výška paketu (mm) 180 – 250
3 Celková výška
žalúzie (mm)
500-3500

STL zosilnený variant

STL - samonosný žalúziový systém - zosilnený

 

Samonosný systém
STL – zosilnený variant
Motor
Šírka žalúzie (mm) 600 – 2300
Výška žalúzie (mm) 500 – 3500
Maximálna plocha
žalúzie (m2)
9

 

Legenda k nákresu
1 Vnútorný priestor
pre žalúzie (mm)
135
(doporučené)
2 Výška paketu (mm) 180 – 250
3 Celková výška
žalúzie (mm)
500-3500

© 2026 NEVA SK